小姐联系信息大全_广深佛莞珠江夜猫子论坛_广东夜猫子品茶论坛

欢迎光临河北冀力重型机械设备有限公司 联系我们|收藏本站|网站地图

河北冀力重型机械设备有限公司

集研发、生产、销售于一体的大型企业

全国服务热线:400-606-7227

您的位置: 首页 > n式传动

n式传动

返回首页 来源:本站原创 发布日期:2019年05月08日
一、概述
我公司生产的轴流空冷风机主要用于石油、化工、冶金等空冷器配套使用,具有风量大、效率高、振动小、噪声低、使用维护方便等特点。
本系列产品的设计制造符合JB1416-87《一般用途轴流通风机技术条件》。
为满足用户工况条件的不同,风机有高效节能型、低噪型、防腐型等不同类型,以适应用户需要。
根据安装使用条件,风机 风量调节方式可分为自调、半自调、手调三种,冷却方式可分为鼓风式和引风式。安装结构形式有b;c;e;f;g;h;k;n;q等多种形式。
二、空冷器风机型号含义及结构说明
1、风机型号含义:


2、风机直径:
(1) 自调、半自调风机,直径为1.8-4.27米(6-14英尺)
(2) 手调风机,直径为1.8-4.5米
3、风机调角方式:
(1) ZF:不停机自动调角式(简称自调式)风机。
通过仪表信号压力变化,风机在运行中自动调节叶片的角度用以改变风量。信号气源压力为20-100KPa;工作气源压力为300KPa。
(2) BF:不停机半自动调角式(简称半自调)风机
在风机运行中,手动调节工作气源压力,可随时调节叶片角度用以改变风量,工作气源压力为200KPa。
(3) SF:停机手调角式(简称手调式)风机
停机后调节叶片角度。
4、叶片系列(玻璃钢材料)
(1) TB系列(FJ3)标准型;节能型;噪声值≤85dB。
(2) TC系列(FJ7)较宽型;适中型;噪声值≤83dB。
(3) TW系列(FJ19)宽型;降噪型;噪声值≤80dB。
以上三种系列叶片应相应轮毂、传动方式配套可组合成为多种型号的风机,以满足各种空冷器的配套使用。
三、空冷器风机传动方式及安装结构尺寸
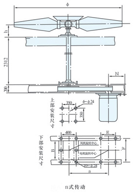
n式传动
适用于2.4-3.6米风机,吊挂式、引风式,安装尺寸见表

风机规格 安装尺寸

a

E F N B 备注
2.4米TB 765 340 730 420 646  
2.4米TC 670 340 730 420 646  
2.4米TW 694 340 730 420 646  
3.6米TB 960 400 730 450 646  
3.6米TC 745 400 950 450 866  
3.6米TW 765 400 950 450 866  
注:1、手调风机h=240,半自调风机h=410.
2、电机机座号不宜大于250。

全国服务热线:400-606-7227在线咨询

主站蜘蛛池模板: 合水县| 贵港市| 龙陵县| 英吉沙县| 安庆市| 石首市| 恭城| 无棣县| 剑河县| 延长县| 佛学| 麟游县| 垣曲县| 鄂托克旗| 古交市| 普洱| 涿州市| 镇宁| 西吉县| 岢岚县| 繁峙县| 临清市| 义马市| 福州市| 西峡县| 德保县| 利津县| 凤凰县| 论坛| 隆林| 五常市| 思茅市| 丽江市| 乡宁县| 安龙县| 营口市| 民县| 宝兴县| 长宁区| 顺义区| 南雄市|