小姐联系信息大全_广深佛莞珠江夜猫子论坛_广东夜猫子品茶论坛

欢迎光临河北冀力重型机械设备有限公司 联系我们|收藏本站|网站地图

河北冀力重型机械设备有限公司

集研发、生产、销售于一体的大型企业

全国服务热线:400-606-7227

您的位置: 首页 > g式传动

g式传动

返回首页 来源:本站原创 发布日期:2019年05月08日
一、概述
我公司生产的轴流空冷风机主要用于石油、化工、冶金等空冷器配套使用,具有风量大、效率高、振动小、噪声低、使用维护方便等特点。
本系列产品的设计制造符合JB1416-87《一般用途轴流通风机技术条件》。
为满足用户工况条件的不同,风机有高效节能型、低噪型、防腐型等不同类型,以适应用户需要。
根据安装使用条件,风机 风量调节方式可分为自调、半自调、手调三种,冷却方式可分为鼓风式和引风式。安装结构形式有b;c;e;f;g;h;k;n;q等多种形式。
二、空冷器风机型号含义及结构说明
1、风机型号含义:


2、风机直径:
(1) 自调、半自调风机,直径为1.8-4.27米(6-14英尺)
(2) 手调风机,直径为1.8-4.5米
3、风机调角方式:
(1) ZF:不停机自动调角式(简称自调式)风机。
通过仪表信号压力变化,风机在运行中自动调节叶片的角度用以改变风量。信号气源压力为20-100KPa;工作气源压力为300KPa。
(2) BF:不停机半自动调角式(简称半自调)风机
在风机运行中,手动调节工作气源压力,可随时调节叶片角度用以改变风量,工作气源压力为200KPa。
(3) SF:停机手调角式(简称手调式)风机
停机后调节叶片角度。
4、叶片系列(玻璃钢材料)
(1) TB系列(FJ3)标准型;节能型;噪声值≤85dB。
(2) TC系列(FJ7)较宽型;适中型;噪声值≤83dB。
(3) TW系列(FJ19)宽型;降噪型;噪声值≤80dB。
以上三种系列叶片应相应轮毂、传动方式配套可组合成为多种型号的风机,以满足各种空冷器的配套使用。
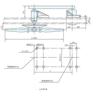
三、空冷器风机传动方式及安装结构尺寸
g式传动
适用于3.6米手调风机及4叶自调或半自调风机,吊挂式、引风式,安装尺寸见表



安装尺寸 风机规格 3.6米TB 3.6米TC 3.6米TW 备注
a 2073 2216 239  

全国服务热线:400-606-7227在线咨询

主站蜘蛛池模板: 中阳县| 青田县| 贞丰县| 兴仁县| 兰坪| 郯城县| 府谷县| 凤山县| 鄱阳县| 渭南市| 夏河县| 阳西县| 云和县| 永兴县| 平安县| 晋城| 永登县| 崇礼县| 漠河县| 衡阳县| 乐陵市| 尉犁县| 旬邑县| 洛川县| 阜宁县| 保康县| 武川县| 远安县| 固安县| 格尔木市| 大竹县| 海淀区| 庐江县| 甘德县| 龙门县| 池州市| 大关县| 乐都县| 望谟县| 临洮县| 祥云县|